Jade Ma
planning - design - art
BREAKING OPEN the suburbs
Challenged with breaking suburban boundaries and creating community space within the limited space in between two houses, I decided to create a connecting structure that necessitates the reciprocal “giving up” of a room from each house to contribute to the combined space. Solitary single-family homes are cracked open and as the space changes, so do the social norms.Through reworking and rethinking the most common and most private contexts of single-family homes, we can overcome normally strict boundaries of privatized suburban neighborhoods and build greater communities. We can break open the nuclear family unit and bring close-knit community and shared space to the suburbs.
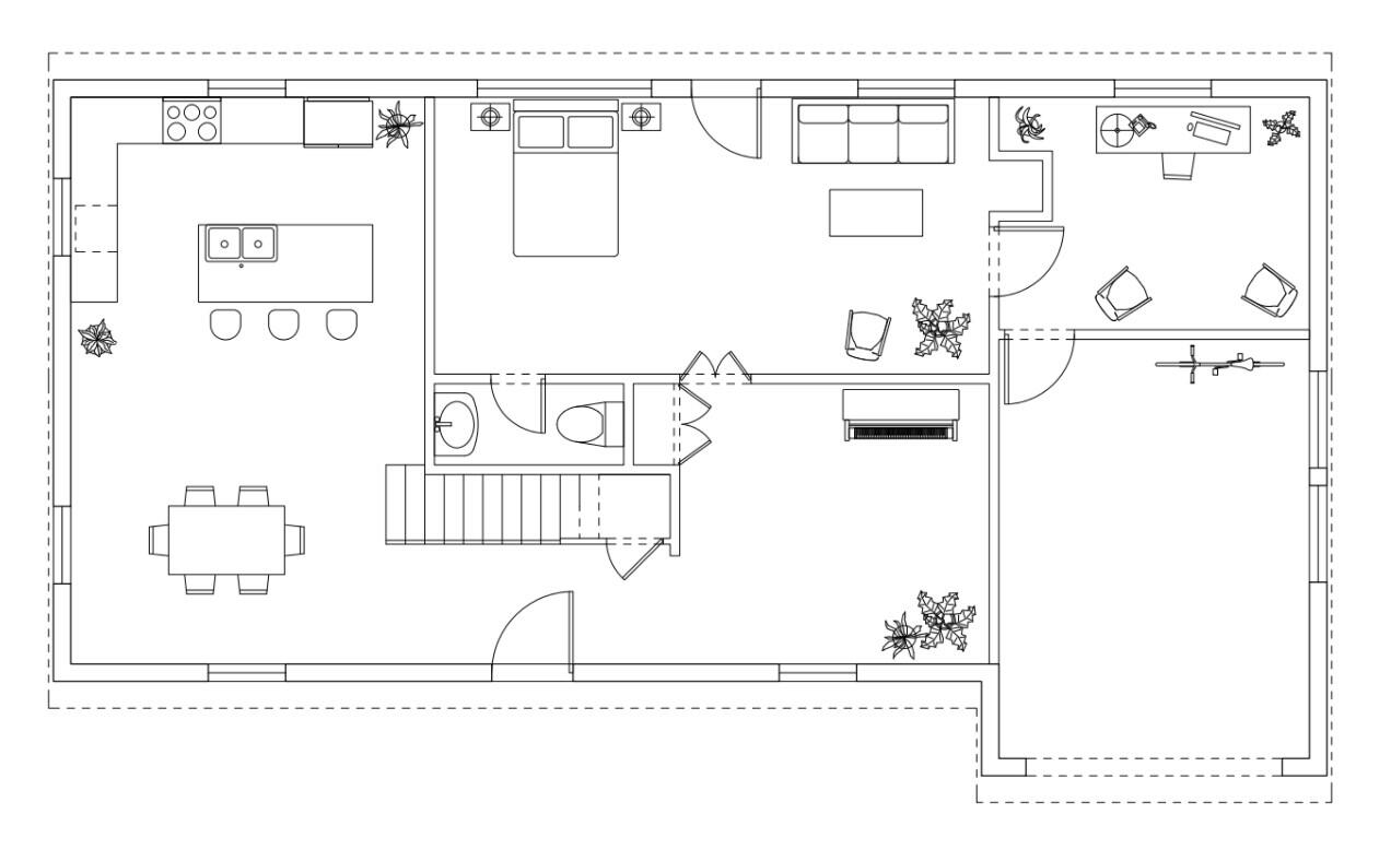
Making the Side Yard Communal
I wanted to reimagine the classic suburban neighborhood and blur the rigid lines of private and public. I wanted to open up a space for community engagement normally lacking in the suburbs. I began by thinking about liminal spaces—spaces of between.The side yard is the space between two houses. It normally has a fence as a barrier to interaction, so I wanted to take this space of separation and transform it into a connector of houses, people, and communities. I wanted to use this design and final collage presentation to challenge the long-held notions of what the suburbs can and should be.Working within the confines of the small side yard in between two single-family homes in the suburban context, I was very limited on square footage. Through creative problem-solving, I decided on a structure that physically links homes together, creating a reciprocal relationship between homes and shared space of inevitable interaction.Private room spaces become community-driven spaces like art studio on the ground story and community kitchen on the second story. Within the combined the side yard space, I have included a covered community garden/greenhouse space with a small, intimate outdoor balcony patio and a lawn space for picnics and larger gatherings.Section drawings, collages, and design program made with Rhino7, Adobe Illustrator, and Adobe Photoshop.

Adapting the Home to Climate Change
Adapting the average single-family home for future extreme weather conditions using Houston, TX as an environmental context.In landscape heavily affected by climate change, the ways in which we design and develop become more and more crucial. Sustainable design is spearheaded by adaptation of existing structures. Challenged with the common single-family home, I adapted the design with minimal structural changes to react to extreme weather conditions and then to alternative programming using Houston, TX as an environmental context.Diagrams made using Rhino7, Adobe Illustrator, and Adobe Photoshop.

In response to the extreme heat of the Texas sun, this single family home has been opened up to provide greater airflow with natural barriers like bamboo to help direct and filter in fresh air into the home.

Adapting existing structures is the most sustainable development, thus I have adapted the single family home structure into a retail cafe space. Private single-family homes are notoriously specific in design, but must be reimagined for more public spaces in the future as urban spaces expand into suburbs.

Expanded overhang seeks to minimize summer sun and optimize winter sun. Coastal storms, hurricanes, and extreme floods are major concerns as well. The terraced sloping rooftops help with directing rainfall. The raised steps help with drainage to prevent floods.

This diagram shows interactions and circulations of public and private space through the stuctural adaptations along with overall airflow.
analyzing climate effects
Through this project, I studied the extreme weather effects of climate change on the city and suburbs of Houston, TX, critically examining our current infrastructure. Through this informational diagramming, we can establish areas of risk and find design solutions and adaptations.
Diagrams made using Rhino7, Adobe Illustrator, and Adobe Photoshop.

Urban Natural Disaster: Section of a Highway Landscape
Doing a study of the effects of climate change on urban centers using Houston, TX as an example. I diagrammed flood prediction of the massive highway system and more frequent hurricanes to study the inadequacies of current urban cityscape design.
Suburban Natural Disaster: Section of a Backyard Landscape
I also studied the distatrous effects of climate change on the landscape of a suburban backyard, analyzing the possible projectiles, groundwork, and soil composition prone to flooding and erosion.

Social Justice in the City
Through extensive research into the changing dynamics of downtown Houston, TX and adjacent neighborhoods, I analyzed the inequalities of infrastructure as they related to quality of life, race, and income.In this urban study, I focused on two neighboring residential areas, the Fourth Ward and Rice Military where I found a large disparity in income levels with relation to access to public transit, parks, and education. These neighborhoods are divided by a large public park and highway. I wanted to visually relate our spatial divisions and organizations to our socioeconomic divisions and examine how our built environment influences our societal relationships and hierachies, furthering inequalities.Diagram created using CADMapper, Rhino7, Adobe Illustrator, and Adobe Photoshop.

Analyzing urban landscapes and built environments through maps and statistical data is crucial to understanding our current infrastructure and demographics, the benefits and shortcomings of our cities, and the needs of the people who live in our cities. A human-centered approach to design starts with thorough research to identify problems and create targeted solutions.Diagrams created using Adobe Photoshop and Adobe Illustrator.
private to public
I analyzed a square kilometer of the suburban area of Khalifa City in Abu Dhabi, an area and city that is continuing to grow at a quick pace in recent years. I created three different map illustrations that help visualize publics, development, and traffic.

undeveloped
In this study, I highlighted open-air lots of undeveloped spaces in contrast to the built environment of housing and parks. This helps visualize the level of density and highlight large sections of open space for future development.

streets and access
This map analyzes the highways and streets of Khalifa City. The arrows indicate direction and the gradients of the streets show accessibility and compare high traffic highways to more private neighborhood roads.

Demographics of NYC
I also overlayed and analyzed the demographics of the boroughs in New York City to examine the different relationships within the city. The base map tracks median household income using census data and the overlay of green shows the relationship of high-income areas to green spaces and parks. There is a direct correlation as most neighborhoods around green spaces have significantly higher incomes.Low-income areas are densely packed and concentrated away from green spaces. The lack of greenery in low-income neighborhoods also contributes to higher temperatures and lower quality of life.This simple overlay diagram highlights relationships between socioeconomic and environmental factors of life and points out income inequalities.Diagrams created using Adobe Illustrator.

Chinatown and gentrification
In Manhattan, one of the world’s notoriously expensive cities to live in, Chinatown and the Lower East Side have thus far been holdouts to the mass gentrification and class upcycling throughout the city — the only remaining working-class neighborhoods in Manhattan south of Central Park. In the face of recent high-rise luxury tower development, there have been protests by long-time aging residents of Chinatown which have “highlighted the fears and struggles of a working-class Asian-American community often ignored in the larger narrative of model minorities.”Comparing median income levels of census blocks with 90% or above populations of Asians, Asian incomes fall far into poverty, while White resident incomes almost double or triple that of Asian counterparts in Chinatown. Aside from median income changes, Chinatown is also facing a threat to the ethnic enclave with recent trends showing shifting racial demographics since 2013; the Asian population is steadily declining while the fastest-growing demographic has been the White population.The yellow borders mark approximate residential boundaries of Chinatown and the blue borders mark approximate commercial boundaries. The census tracts are outlined in a white highlight and are the areas that most overlap with Chinatown.Maps created on Social Explorer.



I investigated the private and public spaces of a single-family suburban home and backyard landscape and how the design and intentionality of spaces change the ways in which we live and interact.Within this exercise, I found ways to make visually clear and impactful designs that not only convey information, but tell a story.Diagrams created using Rhino7, Adobe Photoshop, and Adobe Illustrator.
A study of publics
In this study of publics, I made various diagrams mapping spaces of different styles of homes comparing uses and binaries within space and how they intersect: public/private, loud/quiet, and light/shadow.


interactions of a backyard landscape
I also examined backyard spaces of suburban homes, mapping human vs. animal circulations. I then altered the landscapes to bring more areas of connection and separation between wildlife and humans within the landscape of a simple backyard context.
analyzing the typical backyard


adaptations to divide


Adaptations to gather


Outdoor Performance pavilion
Modeled and rendered in Vectorworks 2020.

Through onsite investigations and the modeling of topographic landscape, I captured the nuances of the hilly forest, contrasting with the frozen frigidity of the lake as the shore meets the land. Different textures and thicknesses of lines give lively qualities to the drawings and help contextualize the proposed structure. Ink gives life to the landscape.
Ink Drawings on Mylar Paper

Hand-drawn topographic map of a lakeside shoreline. A contrasting representation of a frozen lake and an active ground plane.

Section of suggested site for the structure, showing interactions between the original and proposed lakebed and rocky cliffside.

Front section view of structure, texturally giving fluidity and life to the water and rigidity to the scratchy, rocky lakebed.
Through various sculptural projects, I’ve worked directly with my hands, understanding forms and structures in 3D space. I’ve learned to sculpt and manipulate multiple different mediums and materials, analyzing and interpreting different joinery, architectural features, and landscapes.





Woodworking
Woodworking and layered cardboard sculptures inpsired by the landscapes of Japanese minka houses. Monumentality and precarity.
Carved from Walnut, Cherry, Oak, and Cardboard.
Site-Specific Artifact: Allen Island

Taking inspiration from a washed-up scrap piece of a yellow lobster pot found in a shallow tidal pool of Allen Island in Maine, I created about 30 plaster copies through a mold-making process and fashioned a crate in the dimensions of a lobster pot to hold my plasters. My fabricated lobster pot is connected through lap joints with a wire frame top to allow viewers a look inside. Spray painted a luminescent yellow and reintegrated into the tidal pool on site with a natural tilt, the sculpture catches the eye and raises questions of waste and pollution among the fishing industries of Maine and man-made relationships with natural landscapes.The sculpture will be left on site from December 2021 to May 2022, reacting to the rising and lowering of the tides within the pool as a study of environmental growth and decay as well. Constructed from White Plaster, Cedar, Metal Wiring, Screws, and Spray Paint.
Through various sculptural projects, I’ve worked directly with my hands, understanding forms and structures in 3D space. I’ve learned to sculpt and manipulate multiple different mediums and materials, analyzing and interpreting different joinery, architectural features, and landscapes.

Studio Abroad
During January 2023, I travelled to Pietrasanta, Italy, and began work on two sculptures, learning under marble-carving master, Christian Lange. I worked every day for 6 hours a day, every week day for 3 weeks, a total of about 90 hours of work experience. I learned to use all kinds of tools and techniques from ancient practices of chisel and hammer to the modern diamond-blade saws and pneumatic chisels. From concept to production, I played with the materiality of marble.





Nobility of Stone: Marble
A marble carved dome emerging sculpture playing with balance and the light vs. heaviness of marble material with the structure. Inspired by the architectural element of a Victorian garland.Hand-carved white marble and milled cedar in a slow studio culmination of over a hundred hours of studio time with chisel and hammer.

Based on the design of ancient East Asian roof tile pieces. The first a simple translation of the curved tile from clay into marble. The second a looser interpretation of the curves in a corner tile piece. Bringing together Eastern design with Western material and practice. The curves speak as a landscape.




Korea University Architecture Program
Spring 2022, I studied abroad at Korea University 고려대 located in the bustling city of Seoul, Korea. I enrolled in five architecture courses spanning all five years of the Architecture program:ARCH101 Intro to Architecture
ARCH103 Basic Design Studio I
ARCH231 Digital Design Studio I
ARCH339 Architectural Environmental Planning
ARCH441 Architectural Professional PracticeFrom these courses, particularly the studios, I created mass amounts of work to add to my non-traditional liberal arts portfolio. Below are some highlights:



Shown above are drawings of The Quest by Strom Architects. Simple practices in drawing and analysis.
surfaces
Below are three different material and spatial explorations of Secular Retreat by Peter Zumthor. Each takes an elevation view and then expands it into 3D through different methods.This creative method of modeling and drawing allowed me to recontextualize a structure and design that I was already familiar with and create my own interpretive spin on the facade.
Emotional concepts
Below are my midterm and final projects which build off of an emotion as the driving concept. The midterm prompt was to choose an emotion and then create an abstract sculpture of the emotion. The final prompt was to play off the midterm and choose the opposite emotion and somehow convey both conflicting emotions in one structure that would be a pavilion on campus.

Prompted by an emotional concept, I decided to explore the word “PLAYFUL.” Throughout these long years of pandemic, small sparks of joy have been few and far between, so I was in search of something fun: something fun to imagine, fun to create, and fun to look at. I took inspiration from Kandinsky and Alexander Calder—two artists whom I feel the spark of playfulness from—to create a model that looks just like a Kandinsky painting stretched into three dimensions. This was a joy to create, and I hope it is a joy to see.

Building off the abstract fun of “PLAYFUL,” the pavilion below seeks to bring two opposite emotions together in one structure: PLAYFUL and SERIOUS. This pavilion contrasts exterior/interior and day/night to bring continually different experiences for users. The cold-cut and translucent white exterior is straightforward and earnest during the light of the day, but at night, the light inside the structure reveals a hidden trove of color and shape through whimsical shadows cast on the blank canvas of the walls. This pavilion seeks to intrigue and entice, bringing fun to a serious space of study on campus.

Korea University Architecture Program
Spring 2022, I studied abroad at Korea University 고려대 located in the bustling city of Seoul, Korea. I enrolled in five architecture courses spanning all five years of the Architecture program:ARCH101 Intro to Architecture
ARCH103 Basic Design Studio I
ARCH231 Digital Design Studio I
ARCH339 Architectural Environmental Planning
ARCH441 Architectural Professional PracticeFrom these courses, particularly the studios, I created mass amounts of work to add to my non-traditional liberal arts portfolio. Below are some highlights:
Rhino and AutoCAD
Below are my models of Zaha Hadid's Landscape Formation One shows in axonometric view and as an overall design presentation board with scale views and renders. Modeled using Rhino7, designed with Adobe Illustrator, and rendered using Twinmotion.


Below is my presentation board for a multi-story office building designed in AutoCAD. The poster was designed with Adobe Illustrator and perspective renderings were made using Twinmotion.


Perspective View

Section View
Stage Design
Based on the theatrical play Radio Golf by August Wilson, I designed and created a stage model, using the play’s historical context, featured elements, and larger themes and motifs to create a dyanmic set that contrasts the beauty of cultural heritage with the encroaching gentrification of new-build development.A play about the generational African American struggles of race, wealth, and preserving cultural heritage set in the run-down but historically charming redevelopment office in the blighted Hill District of Pittsburgh during 1997. The details take styling from historical Pittsburgh office buildings built in the 1950’s and 60’s like the hand-tooled tin roofing and tattered brick.The play feels like a revolving door of characters and forces circling in and out with Harmond and his moral struggle in the midst of it all. I decided the staging should be full of movement and highlight the beauty of the mundane.

I use a backdrop of historical photos from the Hill District in 1950’s Pittsburgh as a representation of the cultural heritage that looms over the main character throughout the play and pokes through the cuts and doorways of the main set.An aerial view shows the organic patterning of wooden floorboards that suggest an extension of the office out into the audience. The encroaching black and white tile flooring begins to overwhelm the traditional wooden flooring, showing the conflicting relationship as a battleground between the protagonist and antagonist within the office.Made from Styrofoam, Paper, and Cardstock.
Installation Art
2028 meticulously crafted origami cranes in transitioning shades of red, orange, and pink. Individually folded and strung up by hand. Personal art installation commissioned for a stairwell.Created from assorted origami paper and string.



Jade Ma

I am currently an undergraduate student at Colby College studying Architecture and Urban Design. I will be graduating in May 2023.First and foremost, I am a learner. I love to take on new challenges, adapt to new skills and environments, and think critically about our built environments and urban landscapes. I am always looking forward to my next opportunity to learn and grow as an artist and designer.
© Tessier-Ashpool S.A. All rights reserved.
